• Photo 2
  • Photo 2
  • Photo 3
  • Photo 4
  • Photo 5
  • Photo 6
  • Photo 7
  • Photo 8
  • Photo 9
  • Photo 10
  • Photo 3
  • Photo 2
  • Photo 3
  • Photo 4
  • Photo 5
  • Photo 6
  • Photo 7
  • Photo 8
  • Photo 9
  • Photo 10
  • Photo 11
  • Photo 12
  • Photo 13
  • Photo 14

Scroll Down

For Sale Charles Street, Tredegar, NP22 £90,000

3 Bedroom Land  For Sale £90,000

Charles Street, Tredegar, NP22

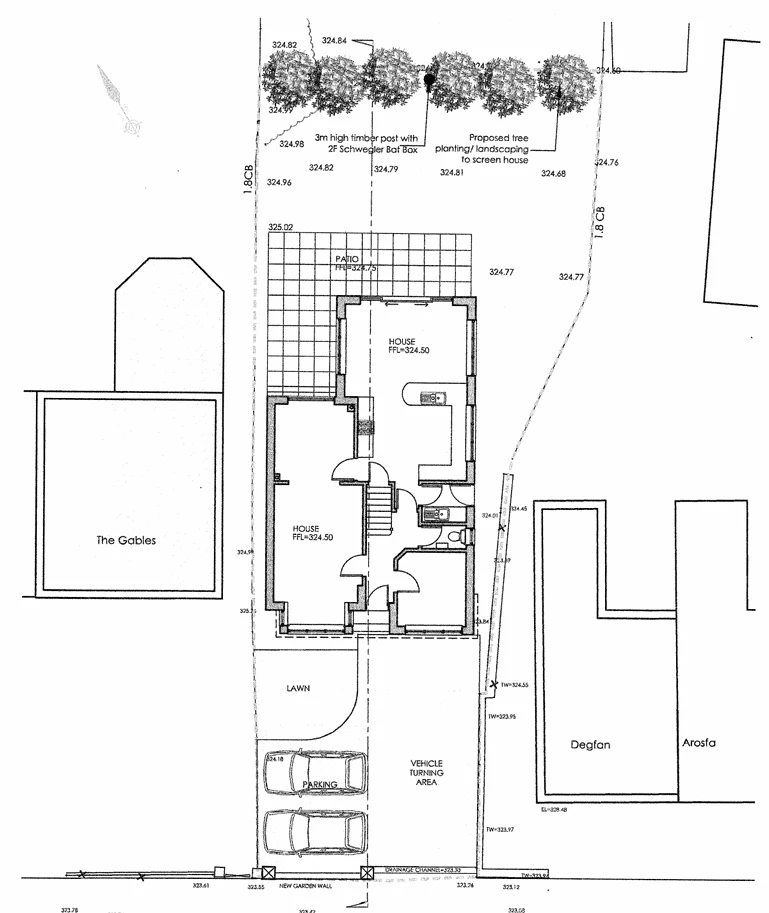
Land for detached home

Freehold

Victoria Homes are offering a fantastic opportunity to purchase a self-build plot, on Charles Street, Tredegar.

Outline planning permission has been granted for a 3 bedroom detached property in a desirable location. There are also designs already in place by the site architect, but these can be worked with, and adapted, to your design and specification.


The Tredegar area of Blaenau Gwent boasts beautiful landscaped walks, family pubs/restaurants, schools and a gym, and a less than 10 minute drive to Ebbw Vale train station where there is an hourly passenger train link to Cardiff Central station and Newport. Located nearby on the previous steelworks site, there are fantastic leisure facilities including swimming pool & outdoor sports fields, Blaenau Gwent Learning Zone which includes primary, secondary and higher education schools. Close by there is the Ysbyty Aneurin Bevan hospital which includes a minor injuries department. Ebbw Vale town has a great selection of shops banks, supermarkets and good road links to the A465/Heads of the Valleys Road. Ebbw Vale town which is the nearest town to Tredegar, also have a good selection of shops, restaurant/pubs and supermarkets.

If you require any further information about the site or the plot, then please don't hesitate to contact us.

The houses shown in the listing are for illustration purposes only.

Location

Property Image

Photo 2
Photo 2
Photo 3
Photo 4
Photo 5
Photo 6
Photo 7
Photo 8
Photo 9
Photo 10
Photo 3
Photo 2
Photo 3
Photo 4
Photo 5
Photo 6
Photo 7
Photo 8
Photo 9
Photo 10
Photo 11
Photo 12
Photo 13
Photo 14

Arrange a Viewing

Arrange a Viewing

Mortgage Calculator

Mortgage Details

Results

Stamp duty calculation

See full breakdown

Total LTT due

Below is a breakdown of how the total amount of LTT was calculated

Up to £0k (Percentage rate 0 %)

Above £0k and up to £0k (Percentage rate 0 %)

Above £0k and up to £0k (Percentage rate 0 %)

Above £0k and up to £0k (Percentage rate 0 %)

Above £0k and up to £0m (Percentage rate 0 %)

Above £om (Percentage rate 0 %)

Please note: This is for illustrative purposes only. The above calculator should not be relied upon when making financial decisions. Please seek advice from a specialist financial provider.

IMPORTANT NOTICE FROM VICTORIA HOMES

Descriptions of the property are subjective and are used in good faith as an opinion and NOT as a statement of fact. Please make further specific enquires to ensure that our descriptions are likely to match any expectations you may have of the property. We have not tested any services, systems or appliances at this property. We strongly recommend that all the information we provide be verified by you on inspection, and by your Surveyor and Conveyancer.

Fees

Letting Fee Information

The asking rent does not include letting fees. Our standard administration fee (which covers general administration and preparation of paperwork) is £xxx (£xxx+VAT). A security deposit, usually equivalent to six weeks rent, is also payable.

Depending on your circumstances and the property you select, one or more of the following may also be charged to you upfront;

Fees may be charged on a per person or per property basis, please call us on 01495370056